Мы используем куки-файлы. Соглашение об использовании
С мебелью

Продается 1-комн. квартира, 30,3 м²

Общая площадь30,3 м²
Жилая площадь16,7 м²
Площадь кухни6,7 м²
Этаж1 из 5
Год постройки1967
55 км от МКАД по Ярославскому шоссе, Сергиево-Посадский р-н, г Хотьково, ул. Калинина, д. 13. На 1-м этаже 5-х этажного кирпичного дома, продается однокомнатная квартира. Квартира не угловая, светлая, теплая, с/у совмещенный. Общая площадь квартиры 30.3 кв. м., жилая 16.7, кухня 6,7. Дом находится в центре города, рядом парк, 3-5 минут до автобусной остановки (до ж/д вокзала 15 минут пешком или 5 минут на общественном транспорте). В шаговой доступности школы, детский сад, фитнес центр Олимп, городской рынок, сетевые магазины (Пятерочка, Дикси, АТАК) и т.д. Документы готовы к продаже, в собственности с 2023 года, 1 взрослый собственник, документы основания Договор купли-продажи). Возможна продажа по ипотеке (заявку в Сбербанк можно подать у нас в офисе, в удобное для вас время), при необходимости подготовим документы и для других банков. Агентство недвижимости "АДЕЛАИДА" гарантирует надежность и качество оказываемых услуг с 2008 года.
Позвоните автору
Вам ответят на все вопросы

О квартире

Тип жилья

Вторичка

Общая площадь

30,3 м²

Жилая площадь

16,7 м²

Площадь кухни

6,7 м²

Высота потолков

2,6 м

Санузел

1 совмещенный

Вид из окон

На улицу

Ремонт

Косметический

Продаётся с мебелью

Да

О доме

Год постройки

1967

Строительная серия

1-447

Тип дома

Кирпичный

Тип перекрытий

Железобетонные

Подъезды

4

Отопление

Центральное

Аварийность

Нет

Газоснабжение

Центральное

Спросите умного помощника
Получите экспертное мнение о жилье
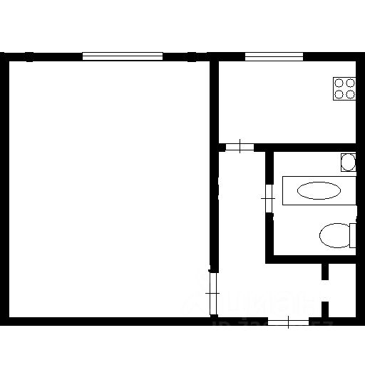
Планировка этой квартирыПо данным Циан
Планировка этой квартиры по данным Циан

Расположение

Ипотечный калькулятор
  • 20.1%
  • 30%
  • 40%
  • 50%
лет
  • 10 лет
  • 20 лет
  • 30 лет
Загружаем предложения от застройщика и банков
Зимой будет тепло
Дома такой же серии обычно хорошо сохраняют тепло
7
3 700 000 ₽
Эксперт от ЦианаПомощь с поиском и сделкой
Цена за метр
122 112 ₽/м²
Условия сделки
альтернатива
Ипотека
возможна
Агентство недвижимости
Документы проверены
На Циан
11 лет
Объектов в работе
93
5,0・25